HOME
ホーム
DIVISION
分譲区画
PLAN
プラン
LOCATION
周辺環境
ACCESS
現地ご案内
OUTLINE
物件概要
ルームツアー動画配信中
来場予約
資料請求
PLAN
プラン
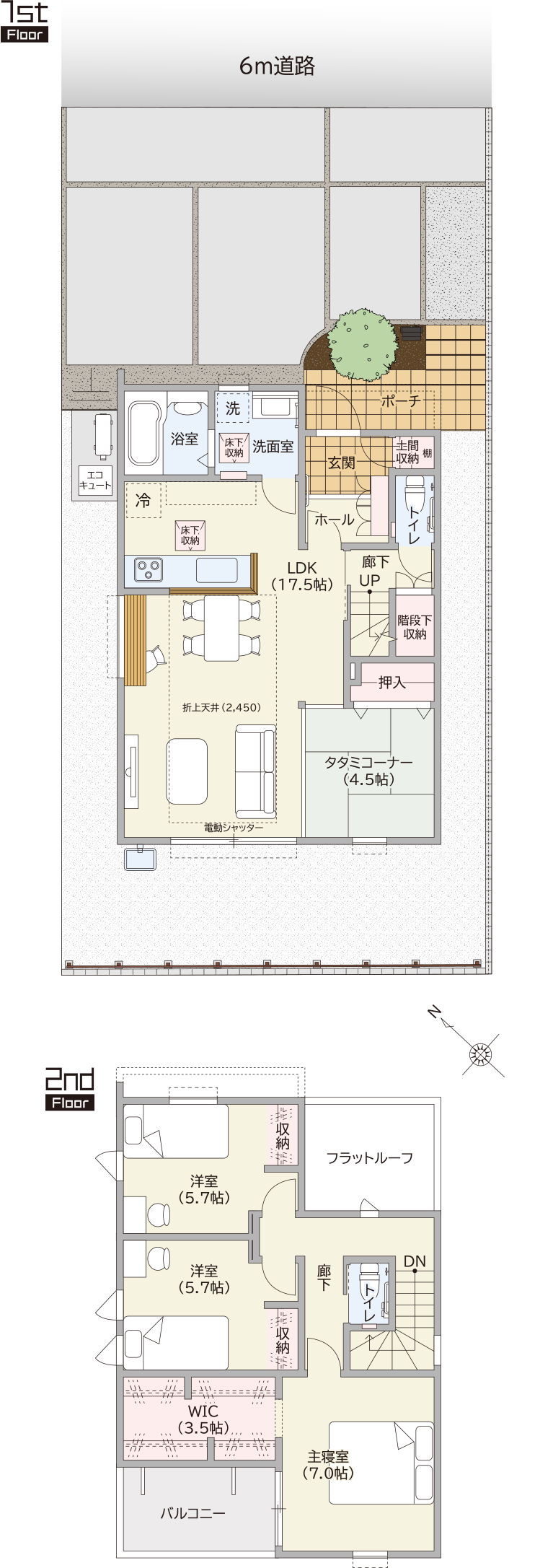
2号地
家族と過ごす時間が増える、カウンター付きの広々リビングプラン。
3LDK+WIC
3,990
万円(税込)
土地面積/150.85㎡(45.63坪)
延床面積/101.43㎡(30.68坪)
1階床面積/55.48㎡(16.78坪)
2階床面積/45.95㎡(13.89坪)
広々リビング
マルチカウンター
タタミコーナー
ワイドバルコニー
区画図
PLAN POINT
広々リビング
みんなが集うリビングは、折り上げ天井で開放感たっぷり。
マルチカウンター
家族と同じ空間で勉強などができる、便利なマルチカウンター。
タタミコーナー
プレイルームやお昼寝にぴったりの、リビングと一体感のある和室。
ワイドバルコニー
家族の洗濯物や布団を1度にたくさん干せる、ワイドバルコニー。
画像をクリックすると、拡大表示ができます。
▲
CONTACT
ご来場予約いただくと
スムーズにご案内させていただけます
『プレシアプロジェクト』コールセンター
0120-35-0306
定休日/水曜日
営業時間/10:00~17:00
来場予約
資料請求