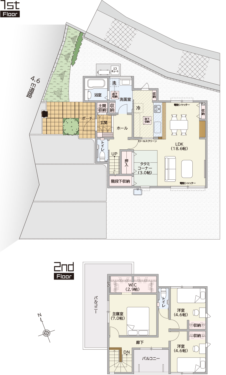
3LDK+WIC


区画図商談中
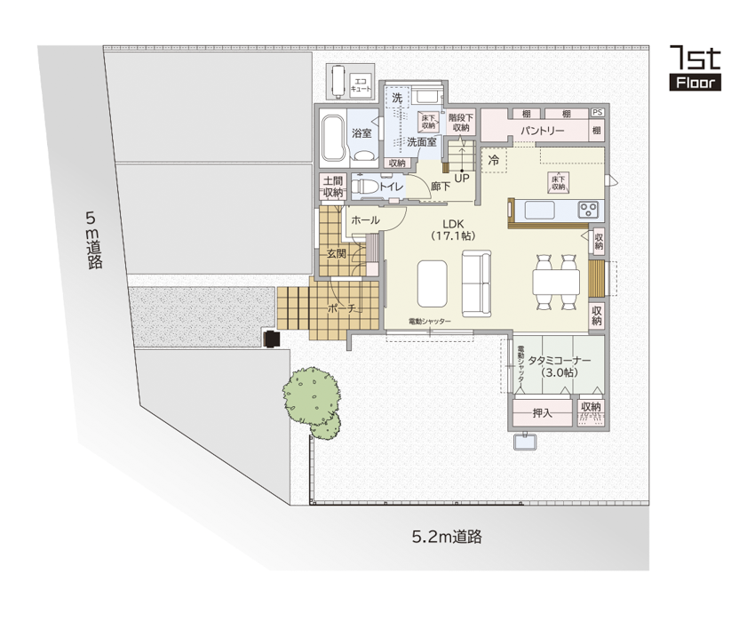
| 土地面積/209.35㎡(63.32坪) 有効面積/185.39㎡(56.08坪) 延床面積/104.65㎡(31.65坪) |
1階床面積/58.79㎡(17.78坪) 2階床面積/45.86㎡(13.87坪) ※インナーバルコニー1.14㎡(0.34坪)を含む |
区画図ご来場予約いただくと
スムーズにご案内させていただけます